"...... Büro in Wohnung umwandeln"
Helle ehemalige Kanzlei 90 m² in Weingarten / Bad.
Als Wohnfläche nutzbar.


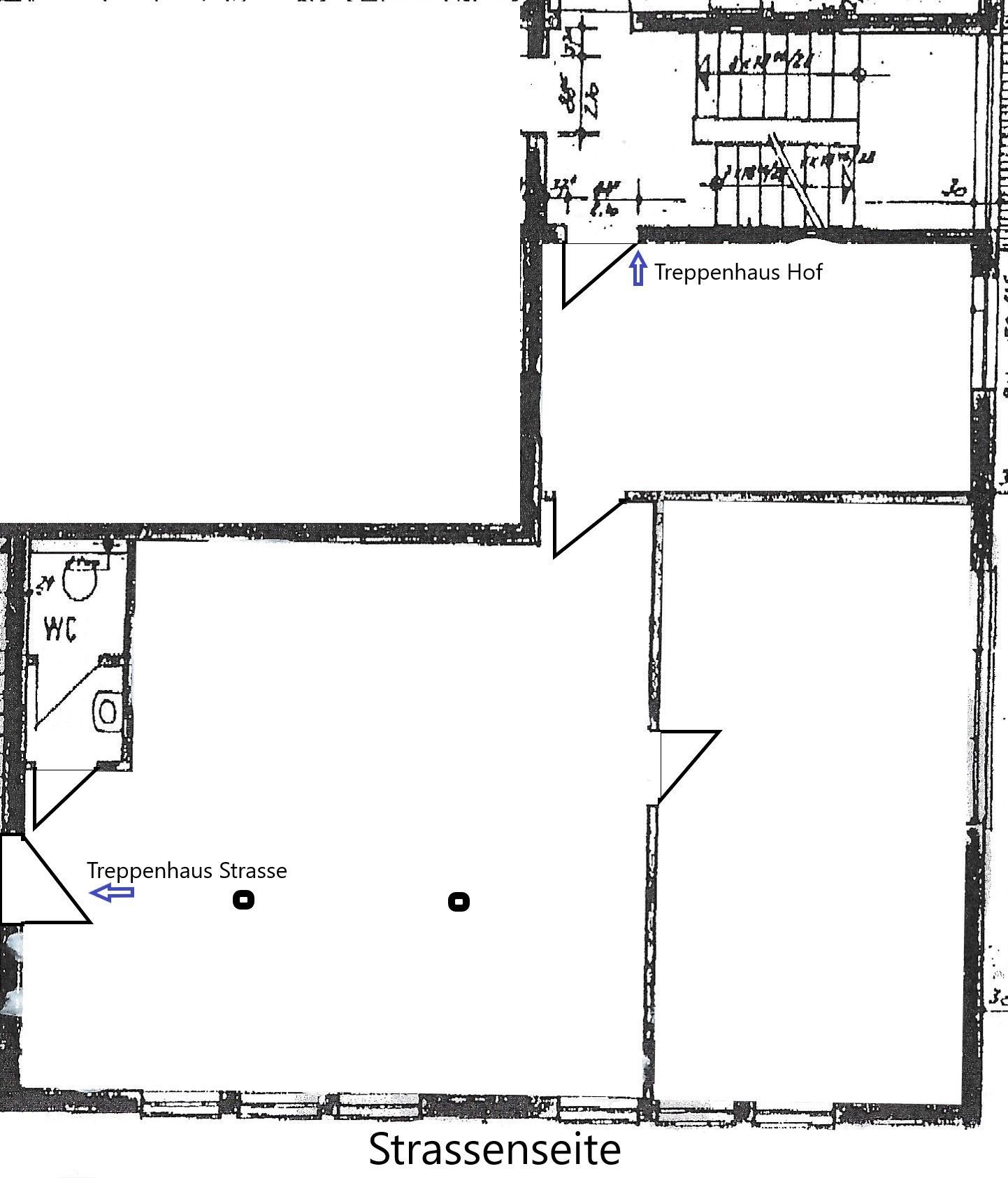
Gut aufteilbare ehemalige Büro- / Kanzleifläche (aktuell 3 Räume), erste Etage in einem 13 Parteienhaus bestehend aus 11 Wohnungen und 2 (1) Gewerbeeinheiten.
2 Eingänge, WC, WC-Vorraum, großer überdachter Autostellplatz und Kellerraum.
Interessant zum Ausbau / Umbau in Wohnfläche, wohnen für Studierende, usw.
Nutzungsänderung in Wohnfläche von Eigentümergemeinschaft genehmigt, einfach Exposé anfordern.
Gestalten Sie Ihre Wohnung nach Ihren Wünschen &
Plänen.
Die Kosten für die Anträge bei den Ämtern, beim Grundbuchamt und die Änderung der Teilungserklärung trägt der Verkäufer.
Lage
Lagebeschreibung
Durlacher Str. 20-22
76356 Weingarten
Baden - Württemberg
Das massiv erstellte 11 Familienhaus + 2 Gewerbeeinheiten liegt im Zentrum von
Weingarten.
Baujahr
Wohnfläche ca
Stellplatz
Kelller
Heizung
Energieverbrauch
Energieträger
Wärmeerzeuger
1992
90 m²
2
1
Zentralheizung
C - 95 kWh/(m*a) Gas
2010
Verfügbarkeit
Preis
Käuferprovision
Sofort
155.000 €
3,57 %